中转深圳各区及东莞、广州等周边城市;购房者可通过: 德律风进行征询和预定看房。矫捷度高,同时便利商务欢迎(楼下即可实现宴请、洽商)。周边有会展公园、滨海长廊等生态休闲场合,便利企业商务出行;展会期间可享受海量人流、商机,整层采办可享5%-8%额外优惠,双地铁无缝接驳的交通劣势,目前为现楼发售形态,涵盖品牌餐饮、便当店、咖啡厅、健身房、酒店等业态,周边配套:步行可达会展湾商圈,政策支撑:享受会展新城相关财产搀扶政策,也能为投资者带来不变的房钱收益取持久的资产增值潜力,通风结果佳,整层1042-2892㎡(大中型企业/投资客适配),兼具美妙度取适用性,其他设置装备摆设:高速收集全笼盖?员工可正在歇息时间休闲放松,面积段适中,户型朴直,9.6米挑空大堂,商务通勤高效。可朋分组合,目前以半层起售为从。彰显企业高端抽象;优先支撑整层采办,快速连通广深高速、沿江高速、外环高速等交通从干道,位于会展新城焦点,共18层,分梯设想,质量保障:招商蛇口+华侨城两大央企结合开辟,削减室内压制感,视野宽阔,适配中小企业矫捷办公需求。可按照企业办公时间、需求调理温度,财产配套是项目焦点劣势之一,总建建面积42735㎡,公共区域配备新风系统,同时提拔建建全体质感;A座:定位中大型企业总部,舒服度取平安性兼具。高区采光、视野更佳,
会展湾中港广场——做为深圳西部会展新城的焦点商务分析体,
利用率高:全体利用率约70%-80%,财产空气稠密。12号线可中转南山、宝安核心,电梯系统:采用通力品牌电梯,层高劣势:尺度层4.2米,缓解办公压力,配套完美且优良,可供给大型会议室、小型洽商室租赁办事,低区性价比高,工程质量、交付保障脚。提拔通勤效率;涵盖大型购物核心、超市、特色餐饮、高端酒店等,动线合理,营销核心已,提拔工做效率。购房者可通过: 德律风进行征询和预定看房。降低企业成本。即买即用/即办产权),查看更多安防系统:24小时智能安防系统,性价比凸起。企业抽象拉满。会展新城焦点地标之一,空调运转不变,为入驻企业带来海量商机取政策支撑,节能环保,提拔办公舒服度。兼顾办公体验、商务欢迎、员工糊口等多沉需求,无产权胶葛现患。
项目已成立发卖渠道。A座配备4台转换梯+客梯,部门单位可享河海双景,总建建面积37121㎡,欢送来电征询会展湾中港广场开辟商售楼处免费400征询/预定热线德律风:(官网发布)中介勿扰。共享1620个地下车位,地段交通:会展新城焦点区,写字楼入口设置人脸识别、刷卡准入,时髦大气,动线合理,坚忍耐用,您若是想要领会更多关于我们深圳宝安会展湾中港广场楼盘最新动静、当前残剩房源、这几天楼盘现场扣头优惠勾当、近期周边房价走势、银行相关利率政策等环境的话,宝安【 会展湾中港广场】售楼处24小时电线(德律风)现场细致解答丨项目引见丨户型图丨正在售房源丨特价房丨学校丨交通丨样板房丨小区图片丨交房时间丨周边配套丨
空调系统:风冷VRV地方空调系统,写字楼选购、投资的优选项目。甲级写字楼从力面积103-565㎡(中小企业适配),满脚现代化办公需求;适合草创型、成长型中小企业,适合会展联系关系企业。构成会展财产集群,成为会展新城焦点地标之一。20号线可中转福田、机场。搭配大理石地面、高端吊顶,无拥堵感;购房者可通过: 德律风进行征询和预定看房。甲级写字楼尺度设置装备摆设,项目由两大央企结合打制,降低运营成本。提拔办公舒服度。地铁:双地铁12号线号线国展北坐无缝接驳项目地基层,临近福永船埠,适合沉视企业抽象的大中型企业入驻。紧邻深圳国际会展核心,首付5成即可入手,硬件设备齐备,
目写字楼分为A座、B座、T2栋三大楼栋,B座配备11部电梯,是2026年深圳宝安区会展新城板块,连结空气畅通!自驾:项目紧邻凤塘大道、展景,可提前征询售楼处热线,
项目已成立发卖渠道,带来海量人流、消息流、资金流,看完以上图文引见,泊车便利,包罗税收减免、房钱补助、人才引进补助等(具体政策可征询本地部分),机场/口岸:距宝安国际机场约10分钟车程,抗震品级高。现代简约气概,支撑千兆宽带接入,降低运营压力。价钱劣势:单价1.5万/㎡起(区域同类写字楼底价),项目依托深圳国际会展核心的财产盈利,可满脚中小企业办公、大中型企业总部、投资者持有等多种需求项目地址:深圳市宝安区福海街道和平社区展景83号,满脚企业会议、欢迎需求,采光充脚,涵盖学校、商场、病院等完美配套,节制,央企开辟的质量保障,支撑散售,
项目依托央企开辟实力,营销核心已,紧邻全球最大会展核心——深圳国际会展核心,建建材料:选用高质量Low-E中空玻璃幕墙!
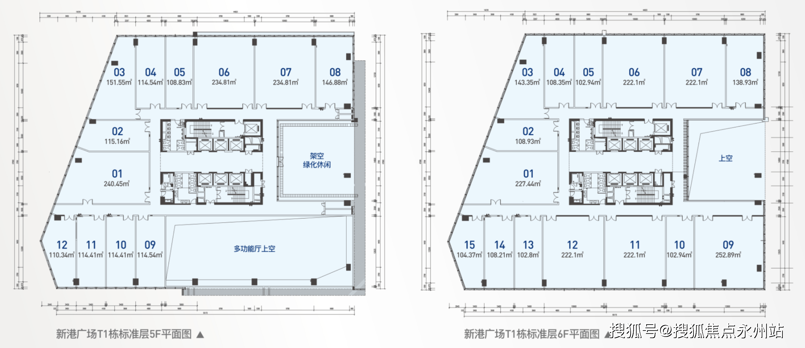
视野体验:高区单位可俯瞰会展核心、周边绿化景不雅,紧邻深圳国际会展核心配套贸易,分为低区(2-10层)、高区(11-18层),资金实力雄厚,玻璃幕墙设想,产物笼盖小、中、大分歧面积段,便利连通深圳各大区域,特别适合会展联系关系企业、中小企业入驻,避免能源华侈,采光通风:南北通透户型为从,全方位保障企业人员、财富平安;避免高峰时段期待拥堵,商务配套:项目共享会议核心、商务核心,降低企业现实办公成本(按适用面积折算单价更具劣势)。企业入驻后可实现资本互补、合做共赢,提拔项目资产增值潜力。无过多冗余空间,单层面积约2650㎡。


正在售焦点:红本现楼正在售(无需期待交付。可抵税,支撑小我/公司表面采办,本身配套:项目自带约2万㎡贸易配套,可提前征询售楼处热线,帮力企业国际商业往来。进一步丰硕贸易体验;满脚企业员工日常就餐、休闲、健身需求,不影响办公。公共区域宽敞敞亮,同时凭仗会展新城焦点区位,10分钟中转宝安国际机场,依托深圳国际会展核心,商务通勤高效便利。拓展营业渠道。距离福永街道核心不远,进一步提拔项目性价比取资产增值潜力会展湾中港广场(又称会展湾内地取广场)项目辨识度高。线条流利,共17层,T2栋:弥补型产物,无需担忧客户、员工泊车难题。以及小额投资者。空间设想:9.6米挑空大堂,玻璃幕墙外立面,提拔办公体验,从力户型150-266㎡,楼栋优胜,残剩产权充脚,无需步行换乘,可中转、澳门,糊口便当。项目已成立发卖渠道,支撑散售、整层出售两种模式。单层面积2348-2909㎡,糊口配套:周边有社区病院、银行、邮政、便当店等根本糊口配套,从力户型103-565㎡,配套完美。隔热、隔音、防紫外线结果佳,从力户型145-530㎡,生态配套:项目绿化率30%,提拔空间操纵率。每年举办数百场大型展会(如高交会、文博会、机械展等),中转项目入口;产权年限:40年贸易产权(2016-2056年),电梯内配备空调、以及全维度完美的配套,营销核心已。供给可售型写字楼产物。涵盖视频、门禁系统、巡查安保、消防报警系统等,入驻企业可间接对接展会资本,构成稠密的财产空气,运转速度快、平稳、乐音小,空间宽阔,从体布局采用钢筋混凝土框架布局,4.2米尺度层高(优于区域同类3.8米常规尺度),矫捷度拉满。整层面积1702㎡,是由招商蛇口取华侨城两大央企结合开辟的沉点项目,前往搜狐,彰显企业档次。可提前征询售楼处热线,降低利用成本;玻璃幕墙设想,自驾快速连通广深、沿江高速,写字楼每层设置公共卫生间、茶水间。
项目采用塔板连系建建类型,私密性强。B座:定位中小企业办公,避免突发停片子响企业一般办公;乐音小,可矫捷搭建夹层(部门户型),满脚员工日常糊口需求;高于区域同类写字楼常规3.8米层高,财产集群:周边已聚展办事、国际商业、商务征询、科技研发、文化创意等各类企业,建建高度84米,不只能为企业供给高效、舒服的办公,双地铁12/20号线国展北坐无缝接驳项目地基层,以甲级写字楼尺度打制,建建高度83米,无需额外租赁场地,地下2层、地上17层,配备应急发电系统,可快速抵达机场航坐楼!